BusinessSales.ltd Logo

Crown Headley

Pubs & Bars • GU35 8BT Management opportunity
Listing image

Summary

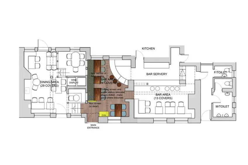
Refurbishing listed village pub with character

Description

The Crown offers a great opportunity for someone who wants to take on a well-backed, newly refurbished pub with plenty of potential. What would you do with this pub to make it even more of a success? The Area The pub is located in the village of Arford, a beautiful and quaint community in East Hampshire. It benefits from being the only pub in the village with a high-quality food offer, and it sits just off the A3, giving easy access for destination diners. The surrounding area is predominantly made up of affluent, older consumers, with around 1,800 people within a 10-minute walk time and only one other competitor nearby. The pub also enjoys a strong community feel and a picturesque setting, making it attractive to locals as well as those seeking a great countryside pub experience. The Offer The Crown is available on our investment tenancy agreement. Click here for more information on our agreements. The refurbishment will upgrade the existing offer while maintaining the amazing character of the listed building. Essential works will take place, alongside improvements to the middle trading area, which will receive new fixed seating and redecoration. The food-led nature of the pub and its destination appeal give strong potential for growth. We’re always open to new ideas. What would you do to drive trade? If you’ve benefited from running or owning a pub business, we’d love to hear what experience you can bring. The right operator for The Crown will have extensive experience in destination food-led hospitality businesses. They will have a clear vision for their food & drinks menu, entertainment offer and marketing strategy and can create a memorable experience for their customers. If this sounds like the incredible pub opportunity you’ve been waiting for, apply today and tell us what you can bring to this pub’s next chapter…

Upfront cost

£24,000
Cost type: Upfront

Key facts

Upfront cost
£24,000
Turnover (annual)
£296,918
Rent
£18,000 (annual)

Location

GU35 8BT
Location shown at seller’s request for confidentiality. Exact details may be available after enquiry.

Enquire

Message the seller. We’ll forward your details so they can reply directly.
By sending, you agree we may forward your message and contact details to the seller for this listing only.