BusinessSales.ltd Logo

Queen Charlotte

Pubs & Bars • SL4 1PA Management opportunity
Listing image

Summary

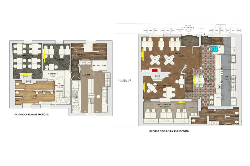
Major refurbishment in Windsor town centre

Description

Bring your experience in managing a team and executing a plan to build a successful pub business. What would you do with this pub to execute our retail offer? The area The Queen Charlotte is located in Windsor town centre, close to Windsor Castle. The pub is surrounded by a busy mix of locals and tourists. Around 3,000 adults live within a 10-minute walk time and 11,000 within a 20-minute walk time. There are 27 pubs within a 10-minute walk, giving strong footfall and plenty of passing trade. The offer Available on our management agreement, Just Add Talent, the pub has a tried and tested food and drinks offer. Click here for more information on our agreement types. We’re also really interested to hear your ideas on how to drive trade. Attitude is more valuable than experience. If you’ve got the following, we’d love to hear from you. If this sounds like the incredible pub opportunity you’ve been waiting for, apply today and tell us what you can bring to this pub’s next chapter…

Upfront cost

£4,000
Cost type: Upfront

Key facts

Upfront cost
£4,000
Turnover (annual)
£539,338

Location

SL4 1PA
Location shown at seller’s request for confidentiality. Exact details may be available after enquiry.

Enquire

Message the seller. We’ll forward your details so they can reply directly.
By sending, you agree we may forward your message and contact details to the seller for this listing only.