BusinessSales.ltd Logo

The Maltings Venue - Multi Complex Opportunity

Pubs & Bars • Station Road, Stowmarket, Suffolk, IP14 1RQ Business for sale
Listing image

Summary

Extensive Bar, Restaurant & Club across 12,000 sq ft. Potential for Change of Use

Description

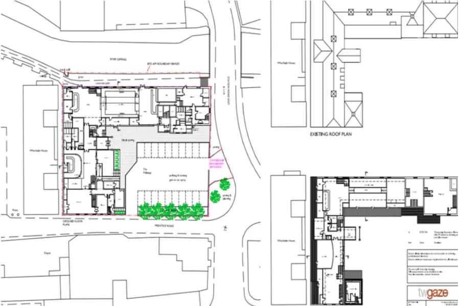
Transaction: Freehold for sale Address: Station Road, Stowmarket, Suffolk, IP14 1RQ Type: Guest House, Retail, Land / Development, Takeaway, Hotel, Cafe, Restaurant, Leisure, Other, Public House, Bar, Alternate Use Tenure: Freehold Freehold available as ‘a going concern’ or with ‘vacant possession’ seeking Unconditional offers in excess of £650,000 (exc VAT). Main front entrance provides split access to The Mill Restaurant and Carbon Nightclub with lift to the first floor. The restaurant also benefits from a courtyard garden for approx 50 covers. Carbon Nightclub is an extensive open space with notable light and sound system, several bar serveries, Photo-booth, Cloakroom, VIP balcony area (with bar), private booth seating and DJ booth. Capacity is around 760 standing but the venue can also be used for dinners, seating around 150 guests on round tables. There are plenty of storage areas to the rear for conference equipment and tables and chairs. There are two Kitchen areas with ample prep space to help cater for the club space and restaurant. The Sports Bar can seat approx 60 customers and has ladies and gents facilities. The property also benefits from an office, staff WC and break out room. The car park has ample parking to the front of the property for 18-20 cars. The split layout of this property makes it an ideal opportunity for those looking for change of use to alternative commercial, office, retail or residential as a whole, or as a split usage. Due to the property’s proximity to Stowmarket station, there is a notably high footfall, as well as making this easily accessible for staff and residence.

Price

£650,000
Price type: Fixed

Key facts

Asking price
£650,000

Location

Station Road, Stowmarket, Suffolk, IP14 1RQ
Location shown at seller’s request for confidentiality. Exact details may be available after enquiry.

Enquire

Message the seller. We’ll forward your details so they can reply directly.
By sending, you agree we may forward your message and contact details to the seller for this listing only.